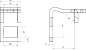
Staffa monolama per molle
Dimensioni
50x8 mm
Telaio
50x50 mm

